Bemærk at pladsfordelingsplaner.dk stadig er nyt. Derfor kører jeg i øjeblikket introduktionspriser.

Få lavet pladsfordelingsplaner til forsamlingshuse, skoler, idrætshaller, telte o.m.m.
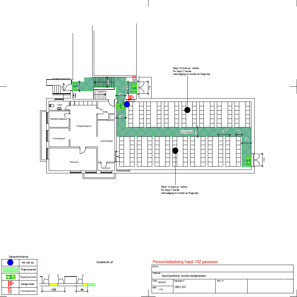
Få udarbejdet professionelle og skræddersyede pladsfordelingsplaner, der opfylder alle bygningsreglementets krav og sikrer, at din bygning og begivenhed lever op til gældende regler.
For et større arrangement, f.eks. stor påskefrokost, sommerfest eller andet, så få udarbejdet en pladsfordelingsplan, hvis i bliver mere end 150 personer.
Hurtig levering, personlig rådgivning og skarp kvalitet – Derudover sikres en høj brandsikkerhed samt god og sikker personkapacitet.
Hvorfor er en pladsfordelingsplan vigtig?
En pladsfordelingsplan bruges som hjælp for dem der skal optille til en forsamling, da der skal præciseres flugtveje, afstande og opstillingen.
Derudover kan personerne i forsamlingslokalet lokalisere flugtvejsdøre og brandslukningsmaterialet, ved hjælp at planen – Derudover bruger brandmyndighederne planen til at gå kontrol og godkende arrangementer.


Hvornår skal du have en pladsfordelingsplan?
- Hvis du vil afholde en begivenhed for mere end 150 personer i et forsamlingslokale i en bygning eller telt, herunder cirkustelte. Her medregnet både gæster, personale, mv.
- Hvis du vil ændre på en allerede godkendt pladsfordelingsplan.
Når pladsfordelingsplanen er godkendt af kommunen eller udarbejdet af en certificeret brandrådgiver, så kan den benyttes om og om igen.
Proffesionelt arbejde
- Uddannet bygningskonstruktør.
- Hyppig indsigt i brandforhold og myndighedsgodkendelse.
- Erfaring med skoler, haller, kantiner, forsamlingslokaler og telte i større kaliber.
- Erfaring med sceneopstillinger, større spisearrangementer, konferrenceopstillinger og større bordopstillinger.

Bestil pladsfordelingsplaner her
Kontakt mig direkte på mail: kontakt@pladsfordelingsplaner.dk
