Hvad kan Pladsfordelingsplaner.dk hjælpe din organisation med?
Jeg hjælper private foreninger, virksomheder, arrangører og foreninger med at udarbejde og få godkendt pladsfordelingsplaner til events og større begivenheder, der har mere end 150 personer. Mit mål er at sikre, at disse planer opfylder alle gældende krav og retningslinjer i bygningsreglementet, så arrangementerne kan afvikles sikkert og i overensstemmelse med lovgivningen.
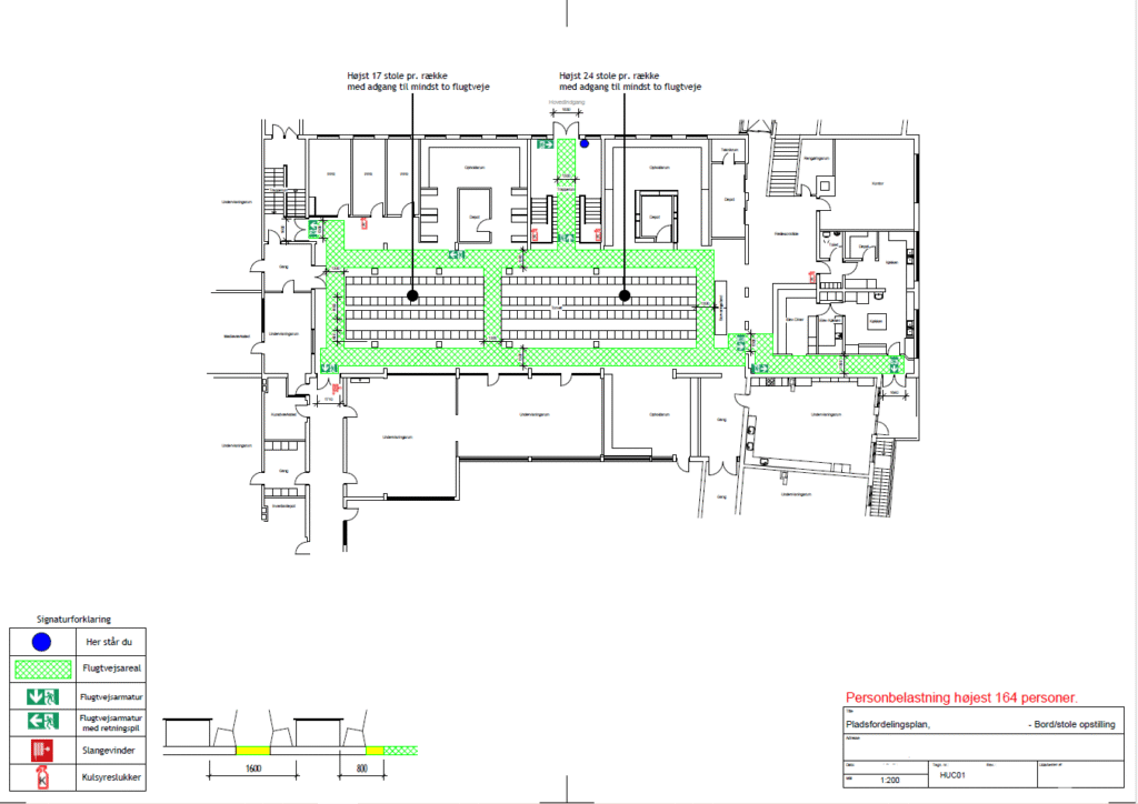
Lovkravet i bygningsreglementets § 514 fastslår klart, at der skal foreligge en godkendt pladsfordelingsplan, hvis man ønsker at afholde en begivenhed med mere end 150 personer. Dette krav gælder for hver enkelt ny opstilling, hvor antallet af deltagere overskrider grænsen. Det er vigtigt at bemærke, at selvom der kræves en ny godkendt pladsfordelingsplan ved hver ny opstilling, kan den samme pladsfordelingsplan dog godt genbruges mange gange til gentagne arrangementer, så længe opsætningen forbliver uændret.
En manglende pladsfordelingsplan kan få alvorlige og kritiske konsekvenser for en organisation, både i forhold til sikkerhed og effektivitet. Derfor er det særdeles vigtigt at have fuldstændig styr på sin brandsikkerhed i god tid, længe inden selve arrangementet afholdes, så alle forhold er nøje planlagt og risikoen minimeret.


