Større arrangementer i haller
Haller er typisk store og åbne rum, der dagligt kan være brugt til produktion, trænning, gymnastik eller opbevaring – Men ofte kan disse også burges til koncerter, konferrencer, julefrokoster og andre arrangementer hvor man er flere end 150 personer samlet. Med mere end 3.500 produktionsvirksomheder, 1.200 lagervirksomheder og 2.000 idrætshaller, så er det oplagt at genbruge disse til offentlige arrangementer eller begivenheder for virksomhedens ansatte.
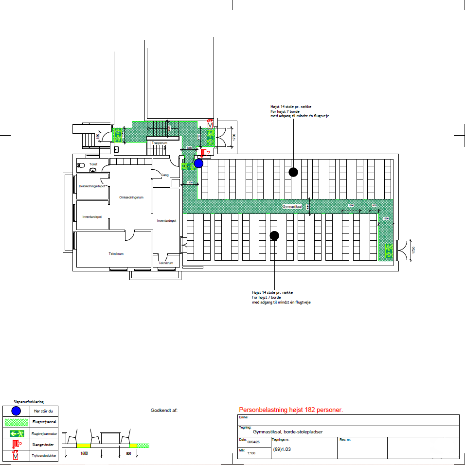
Bygningsreglementet (BR18, §514) stiller krav om en godkendt pladsfordelingsplan, når man afholder arrengementer til flere end 150 personer. Denne plan sikre at flugtveje, døre, stole, borde og andet inventar planlægges optimalt, så alle personer kan komme i sikkerhed ved nødsituationer.
Jeg hjælper med udarbejdelsen af pladsfordelingsplaner til idrætshaller til en fast og gennemsigtig pris. Du skal blot selv søge tilladelsen igennem kommunen – Men jeg hjælper jer hele vejen til godkendelse.
Hvad siger reglerne om arrangementer i haller?
Hvis hallen bliver brugt til færre end 150 personer, bør der ophænges et tydeligt skilt, hvor der påvisses maks personkapacitet på 150 personer.
Hvis hallen bliver brugt til mere end 150 personer, så skal der udarbejdes én pladsfordelingsplan pr. ny opstilling jf. Bygningsreglementet Kap. 5, bilag 11C.
Her skal der vises den maksimale personkapacitet, flugtveje, flugtvejsudgange samt bredderne på disse.

Mangler din organisation pladsfordelingsplaner til jeres hal?
Overvejer jeres organisation eller forening at afholde et større arrangement i jeres haller med mere end 150 personer? Så skal der ophænges en godkendt pladsfordelingsplan i henhold til bygningsreglementet.
Hos Pladsfordelingsplaner.dk får du udarbejdet pladsfordelingsplaner og professionel rådgivning af én erfaren rådgiver. Uanset om det er en pladsfordelingsplan med stoleopstilling, borde- og stoleopstilling eller med fleksible områder, kan jeg udarbejde dem inden for kort tid til en billig og gennemsigtig pris.
Jeg står for udarbejdelsen af planen, mens ansøgningen til kommunen indsendes af jer. Jeg er dog klar til at rådgive og assistere jer, indtil I har modtaget den endelige godkendelse. En tryg, nem og overskuelig løsning.
Pladsfordelingsplan udført som fjernarbejde og med besigtigelse.
Jeg tilbyder udarbejdelse af professionelle pladsfordelingsplaner, hvor du kan vælge mellem fjernarbejde eller en fysisk besigtigelse af dit lokale, alt efter hvad der passer bedst til situationen og hvor lokalet befinder sig i landet.. Har du mål, tegninger eller billeder, kan jeg udarbejde planen direkte ud fra disse.
På baggrund af dine oplysninger – eller min egen opmåling – modtager du en detaljeret og overskuelig pladsfordelingsplan, der tydeligt viser kapacitet, inventarplacering, indretningsmuligheder og flugtveje. Planerne egner sig særligt godt til foreninger, virksomheder, kulturhuse, forsamlingslokaler og feststeder, og de kan bruges både til myndighedskrav og praktisk planlægning af arrangementer.
Alle planer leveres digitalt i et format, der er nemt at anvende til dokumentation, godkendelser og fremtidige events. Løsningen giver dig fuld tryghed i forhold til gældende regler, og du står tilbage med en klar og professionel oversigt over, hvordan lokalet bedst og mest sikkert kan indrettes – uanset om arbejdet udføres på afstand eller ved et personligt besøg.
Min arbejdsproces
Se denne enkle og overskuelige tabel for bedre at forstå, hvordan jeg hjælper dig med at udarbejde pladsfordelingsplaner.
Hvis du ønsker en mere grundig og detaljeret beskrivelse af processen, kan du læse videre herunder, hvor hvert trin bliver forklaret mere udførligt.
1
Orderen modtages
Her vurderes lokalets behov og gældende lovgivning, som danner grundlaget for den videre planlægning og sikrer en skræddersyet løsning.
2
Udarbejdelse af plan
Jeg skaber en detaljeret pladsfordelingsplan, der lever op til myndighedernes krav og tager hensyn til brandsikkerhed samt praktisk anvendelse.
3
Godkendelse og rådgivning
Den færdige plan indsendes til myndighederne.
